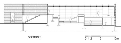
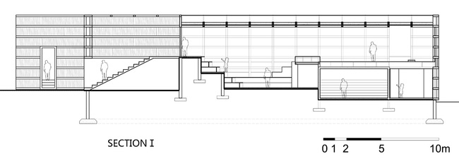
M-RAIC Prize – Liyuan Library – Image Courtesy RAIC October 13, 2014 Archinect News | Reporting from [Aga Khan Museum] Toronto: Li Xiaodong wins inaugural Moriyama RAIC International Prize for the Liyuan Library 650 × 235 Liyuan library schematic. (Image Courtesy RAIC) Liyuan library schematic. (Image Courtesy RAIC)